2023-08-04
597 预览
温暖人心的家,不是靠豪装。家,绝不是越豪华越好。真正能打动人心让人舒心入住的房子,往往都是一些契合屋主生活习惯的实用设计。
惠州居安装饰7080维修设计师要分享的翻新装修案例便是如此,来自一对95后惠东夫妻的90㎡小家,让曾经阴暗老旧的二手房“重获新生”。全屋功能设计,是最为可圈可点的,真心很实用,一起看看吧。

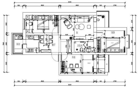
平面布局方案
90㎡的使用面积,老房子的公摊比例不大,而且地理位置不错,便于两口子在市区工作通勤,性价比还是很高的。紧凑的三卧两厅格局,带一厨一卫,目前两人居住,老房子承重墙较多,所以没有做大量的墙体拆改,主要以细节上的优化,为空间赋能。
1、玄关
屋内实景
遗憾对比图的角度不一样
不过也不难看出
左边是正对入户门拍摄
右边是站在入户门右侧拍摄
改造前后的格局未变
不过拆除了原先厨房和过道
划分的铝合金隔断
让空间更为开阔、大气

改造前后对比

鞋柜的设计可圈可点
因为面前就是进入儿童房的过道
所以做了无拉手的弹簧器设计
极简白色柜门减少磕碰概率
且大气清爽便于打扫
鞋柜底部的一层镂空
是很有必要留出来的
未来最多会有5口人同时居住
不可能每一个家属进出门的时候
都频繁开关柜门取物
常用的鞋子放在柜子最底部
存取最方便
整齐摆放也有隐藏效果
2客厅
老房子最大的采光弊端
就是很难会有落地窗格局
客厅只有一旁阳台的一扇小窗采光
而之前的装修都是沉闷的木色护墙板
显得更为阴暗老气


一改原来老气风貌
如今呈现精致温馨的北欧风格调
不得不佩服设计师和女屋主的品味超棒
空间硬装以浅色系打底
透亮的大理石纹瓷砖
搭配灰色乳胶漆墙面
高级百搭
更显宽敞干净
也有较好的折射光线效果
电视柜右侧再摆放一组阔叶绿植就完美了
全屋瞬间充满了自然气息
屋主家这个绿植叫天堂鸟
放在家里特别有效果


回到家里
第一视角就能看到温馨精致的客厅
看着都觉得心情很好~

3、餐厅
改造前是从厨房朝向餐厅拍摄
之前的餐厅和厨房是一体式
在接近门厅的位置装了一个玻璃隔断
虽然透光
但整体空间很浪费
餐桌椅常年油腻
打扫困难也不美观


改造后恢复了独立式格局
在餐厅和厨房之间组里了黑框玻璃推拉门
明亮通透
整个门厅空间也更宽敞大气
餐桌椅左手边
定制了中部镂空的餐边柜
除了收纳备用杂物
还可以堆放常用的小电器
为厨房减负
临近过道
存取物品也很顺手方便

虽然不是南北通透的格局
但如今的颜值和效果真的很不错了
墙面点缀两幅抽象派的金框装饰画
让空间更精致
更有艺术感
实木的餐桌用防水防油桌布保护起来
款式多样



颜值也高
用坏了就换新
让餐厅时常拥有不同的风格搭配
很赞
很多人觉得家里的餐桌光秃秃的不好看
其实就是差一个防水桌布的点缀
美观又实用
4、厨房
之前的厨房还连接着一个生活阳台
整个空间在一体式的情况下挺宽敞的
但是也浪费了很大面积
保留了厨房外面生活阳台的功能
一旁的半组配重墙可以充当
额外的置物台面



这种格局的厨房最适合
设计双一字型橱柜
左手边切菜烹饪
右手边洗菜、洗碗、整理
功能衔接也很理想
不过
双一字型橱柜的缺点是平时操作
需要转身跨两部
地面就容易滴水
为了解决这个问题
可以看到屋主家厨房地面橱柜
附近铺设了有吸水地垫
可以起到防滑耐脏的作用
▲从厨房看鞋柜的位置
水槽右侧摆放冰箱
是专为屋主生活习惯设计的
她会把下次炒菜需要用的蔬菜洗干净
沥干后装进保鲜盒收纳到冰箱里
这样设计用起来就更顺手
进厨房从冰箱取物也更快捷更方便
5、主卧
一改老气格调
延续了客厅的硬装基调
大面积白色墙面
一面灰色墙面打底



划分空间层次感
且高级百搭
配上法兰绒床头靠背
点缀金色壁灯
精致又温馨
5、卫生间
因为承重墙的缘故
门洞的位置不能改变
为了弱化突兀感
就用到了木质护墙板包裹

让门和墙板门框一体化
很简约不突兀
色调上也呼应了电视柜的木色系
▲卫生间干区
内部做了干湿分区的设计
虽然是在北京
不必像南方担心潮湿问题
不过洗漱台外置还是更方便使用
打扫也方便
定制的浴室柜
更能良好的利用边角区域
台下盆设计搭配金色龙头
便于打理
配上深蓝色柜体
精致又轻奢
左下角特地做了镂空的设计
符合收纳“有藏有露”的规律
常用物品拿取更方便
湿区入口位置常备一个吸水地垫
更利于小面积做卫生和清洁
▲湿区
墙面的富余空间留出了一个壁龛

收纳常用清洁品
这样就不需要悬挂在凌乱的挂架了
惠州居安装饰设计工程有限公司(7080维修),公司自成立以来,始终坚持“一切为了客户、诚信经营、服务第一、不断创新、质量取胜”的经营理念,在服务好客户的同时,不断完善自我。在微信小程序搜索7080维修或直接扫码点击进入维修平台,点击旧房翻新,提交订单后会有专业的师傅与您联系。